Amerikalei 146
Karaktervol gelijkvloers appartement met private tuin op 't Zuid.
A character ground-floor apartment with private garden on 't Zuid.
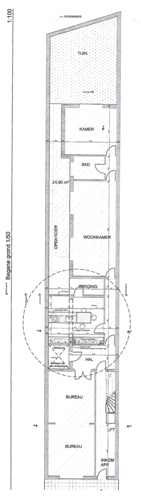
Dit ruime gelijkvloerse appartement maakt deel uit van een rustig gebouw met slechts vier eenheden en aangename mede-eigenaars. Vanuit de aparte inkomhal heeft u toegang tot twee opeenvolgende ruimtes — vandaag in gebruik als werkplek en tv-ruimte, even goed in te richten als slaapkamer — de berging en de hal naar de keuken en de woonkamer.
De volledig aparte keuken biedt voldoende plaats om aan tafel te eten. De woonkamer en de slaapkamer liggen aan de achterzijde van het gebouw en zijn daardoor muisstil. Via de keuken hebt u toegang tot de open koer en de eigen stadstuin — ruim genoeg voor zomerse barbecues met tot tien gasten.
Achteraan vindt u de slaapkamer met direct zicht op de tuin — ongebruikelijk voor een stadsappartement op deze locatie — en de badkamer.
Het appartement is meteen bewoonbaar na een grondige poetsbeurt en een likje verf, maar het bevat ook heel wat potentieel voor een renovatie. Het gebouw is gedeeld met drie andere mede-eigenaars, die vlot samenwerken.
This generous ground-floor apartment is part of a quiet building of just four units with friendly co-owners. From the private entrance hall you reach two consecutive rooms — currently used as a workspace and TV room, just as easily reconfigured as a bedroom — the storage room, and the hallway to the kitchen and living room.
The fully separate kitchen has enough room for an eat-in table. The living room and bedroom sit at the back of the building, making them whisper-quiet. Through the kitchen you reach the open courtyard and the private city garden — comfortably big enough for summer barbecues with up to ten guests.
At the back you'll find the bedroom with direct views onto the garden — uncommon for a city apartment in this location — and the bathroom.
The apartment is move-in ready after a deep clean and a fresh coat of paint, but it also holds plenty of potential for a renovation. The building is shared with three other co-owners, who work together smoothly.
- InkomhalEntrance hall
- Bureau (2 ruimtes)Office (2 rooms)
- KeukenKitchen
- LivingLiving room
- ToiletToilet
- BadkamerBathroom
- SlaapkamerBedroom
- BergingStorage
- WasruimteLaundry room
- KelderCellar
Waar het ligt.
Where it sits.
Uw woning
Your home
- Amerikalei 146
Kunst & cultuur
Art & culture
- KMSKA3 min
- FOMU5 min
- M HKA7 min
- Justitiepaleis5 min
Eten & koffie
Food & coffee
- Andy's Coffee5 min
- Delafaillebakker · 5 minbakery · 5 min
- Butcher's Store South4 min
- The Barnbio · 4 minbio · 4 min
- Marnixplaatscafés · 5 mincafés · 5 min
- Troonplaats4 min
Supermarkt
Supermarket
- Delhaize3 min
- Carrefour5 min
- Colruyt5 min
Sport & vervoer
Sport & transport
- The Brick Gym5 min
- Montignytramhalte · 1 mintram stop · 1 min
De indeling.
The layout.
Basis in orde.
The basics are sorted.
De huidige gasfactuur bedraagt € 77 per maand — verwarming, koken en warm water inbegrepen.
The current gas bill is € 77 per month — heating, cooking and hot water included.
Recent geplaatste condenserende gasketel — efficiënt, stil, en conform de huidige normen. Geldig keuringsattest uit 2023.
Recently installed condensing gas boiler — efficient, quiet, and meeting current standards. Valid inspection certificate from 2023.
Volledige keuring uitgevoerd in 2023 — een geldig keuringsattest dat de koper geen onaangename verrassingen oplevert.
Full inspection completed in 2023 — a valid inspection certificate, no unpleasant surprises for the buyer.
Over het EPC: het label staat op E (432 kWh/m²·jaar). De beoordeling werd destijds uitgevoerd zonder de ondersteunende documenten van het gebouw, wat het label negatief heeft beïnvloed — de werkelijke gasrekening van € 77 per maand schetst een gunstiger en realistischer beeld van het verbruik. Certificaat 20211117-0002494766-RES-1, geldig tot 17/11/2031. Volledig EPC (PDF) ↗ About the EPC: the label is E (432 kWh/m²·year). The assessment was performed without the building's supporting documents, which pushed the rating down — the actual gas bill of € 77 per month paints a more realistic picture of consumption. Certificate 20211117-0002494766-RES-1, valid until 17/11/2031. Full EPC (PDF) ↗
Alles op papier.
It's all on paper.
Wettelijk verplicht
Legally required
- EPC — Energieprestatiecertificaat EPC — Energy performance certificate 650 KB ↗
- Bodemattest (OVAM) Soil certificate (OVAM) 116 KB ↗
- Stedenbouwkundig uittreksel (EK) Urban planning extract (EK) 789 KB ↗
- Stedenbouwkundige inlichtingen (SI) Urban planning information (SI) 221 KB ↗
- Verkoopdossier syndicus — Art. 577-11 § 1 Syndic sale dossier — Art. 577-11 § 1 62 KB ↗
- Keuringsverslag elektrische installatie (2023) Electrical installation inspection report (2023) 1.1 MB ↗
- Keuringsattest gasketel (2023) Gas boiler inspection certificate (2023) 405 KB ↗
Plan
Plan
Bijkomende documenten — kadastrale legger, notariële aktes, verslagen algemene vergadering, energiefacturen — worden bezorgd aan geïnteresseerde kandidaten in het kader van het verkoopdossier. Mail gerust voor aanvraag. Additional documents — cadastral record, notarial deeds, general-assembly minutes, energy bills — are shared with interested buyers as part of the sale dossier. Email me to request them.
Plan een bezoek.
Book a visit.
Mail rechtstreeks voor meer informatie of om een afspraak in te plannen.
Email me directly for more information or to schedule a viewing.
146@joris.be →



















